Italiano
345.000 €

SPINEA - FOSSA

Casa singola in vendita • Spinea - Via Giuseppe Mazzini
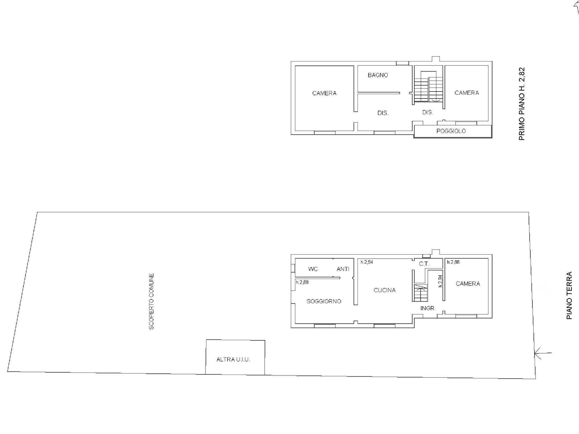
Spinea, a Fossa in una via residenziale, silenziosa e riparata dal traffico, disponiamo di CASA COMPLETAMENTE SINGOLA SU DUE LIVELLI con AMPIO SCOPERTO DI PROPRIETA’ ESCLUSIVA!!! La soluzione al piano terra è composta da: ingresso, cucina abitabile, soggiorno, bagno e antibagno ad uso lavanderia, sottoscala e camera singola. Al piano primo troviamo: grande disimpegno con poggiolo, ampia camera matrimoniale, altra camera, bagno e ripostiglio. Esternamente è presente un garage, un ampio scoperto di proprietà dove poter parcheggiare più auto e anche un giardino esclusivo!!! Internamente la casa è stata ristrutturata negli anni, come finiture troviamo: pavimentazione in gres porcellanato dappertutto, finestre in legno vetrocamera, tapparelle sostituite in pvc, zanzariere dappertutto, stufa a pellet, bagno al primo piano completamente ristrutturato dal massetto l’anno scorso, dual split d’aria condizionata con pompa di calore, impianto idraulico rifatto, impianto d’allarme perimetrale, coibentazione interna, termosifoni sostituiti, impianto elettrico rifatto e riscaldamento autonomo con CALDAIA A CONDENSAZIONE! Esternamente il contesto si presenta bene, con la regolare manutenzione sempre svolta e senza alcun lavoro straordinario in previsione! Esposizione libera su tutti e 4 i lati, casa luminosissima in posizione strategica, riparata dal traffico e a due passi dalla fermata dei mezzi pubblici per Venezia. Super comoda e vicina sia al centro di Spinea che al centro di Mirano!! Soluzione ideale per chi cerca una casa indipendente di comoda metratura e soprattutto con comodo scoperto per divertirsi con la propria famiglia e amici!!! CASA INDIPENDENTE E LIBERA DA SUBITO!!! IMMOBILE DA VEDERE ASSOLUTAMENTE PRIMA CHE SIA TROPPO TARDI!!
Caratteristiche principali
Codice
V000609
Città
Spinea
Categoria
Casa singola
Prezzo
345.000 €
Locali
7
Camere
3
Bagni
2
Mq
143
Box
1
Mq Box
11
Mq Giardino
130
Balconi
1
Classe energetica
F
180
Stato Immobile
Buono
Grado
Medio
Posizione
Centro Storico
Panorama
Vista Aperta
Orientamento
Nord Ovest Sud Est
Lati Liberi
4
Giardino
Privato
Arredi
Possibilità
Tipo Soggiorno
Soggiorno
Tipo Cucina
Abitabile
Riscaldamento
Autonomo
Tipo Riscaldam.
Caldaia a Condensazione
Tipo Impianto
Radiatori
Fonte Energetica
Gas
Acqua Calda
Autonoma
Raffrescamento
Split
Infissi
Legno Doppio Vetro
Serramenti
Discreto
Persiana
Tapparella PVC
Pavim. Giorno
Gres Porcellanato
Pavim. Notte
Gres Porcellanato
Pavim. Cucina
Gres Porcellanato
Pavim. Bagno
Gres Porcellanato
Accesso Disabili
Nessuna Barriera
Accesso interno disabili
Pieno accesso
Isolamento
Presente
Isolamento termico
Isolamento tetto/sottotetto
Destinato a residenti
Si
VMC
No

Accessori: Antifurto, Aria Condizionata, Armadio a Muro, Cancello Elettrico, Doppi Vetri, Fibra Ottica, Lavanderia, Porta Blindata, Rete Dati, Ripostiglio, Stufa a Pellet, Video Citofono, Zanzariere

Mappa
Via Giuseppe Mazzini , Spinea (VE)
L'AGENTE di Spinea
Via G. Matteotti, 17/B -
30038 Spinea VE
Condividi su
Cookie preference