Italiano
198.000 €

ORIAGO - CENTRO

Porzione di Casa in vendita • Mira (Oriago) - Via Piemonte
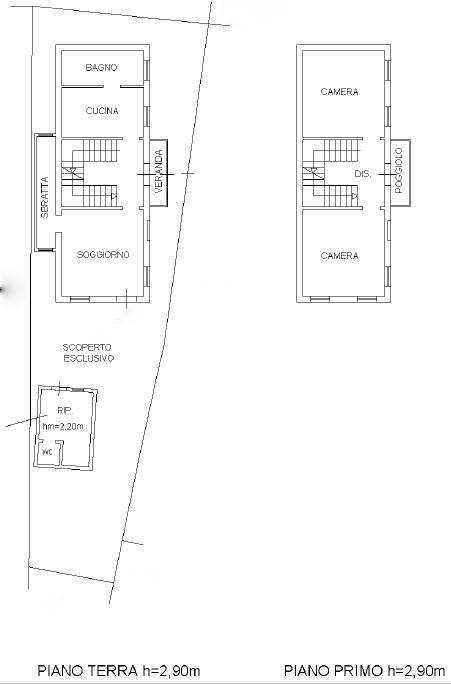
Oriago centro, in una laterale di via Veneto, in una zona molto silenziosa e appartata, disponiamo di una PORZIONE DI CASA LIBERA SU 3 LATI!!! La soluzione è composta dal piano terra con: veranda, ingresso ampio, soggiorno, cucina abitabile, bagno, piccolo sottoscala, ripostiglio ad uso lavanderia. Al piano primo troviamo: disimpegno, poggiolo, camera matrimoniale, altra camera matrimoniale. All'esterno è presente un magazzino sul giardino di proprietà! L'immobile è stato ristrutturato negli ultimi anni, come finiture troviamo: pavimentazione in gres porcellanato al piano terra, marmo alla veneziana al primo piano e pavimento in SPC in bagno, finestre nuove in pvc vetrocamera anta ribalta, bagno completamente ristrutturato dal massetto nel 2024, scuri in legno rifatti, porta blindata, CAPPOTTO ESTERNO DA 12CM, termosifoni sostituiti, porte interne sostituite, impianto elettrico rivisto, split d'aria condizionata con pompa di calore e riscaldamento autonomo CON CALDAIA A CONDENSAZIONE!! Esternamente l'immobile si presenta bene, con la regolare manutenzione sempre svolta e senza alcun lavoro straordinario in previsione. Inoltre è stato ristrutturato l'esterno e il tetto facendo isolamento e impermeabilizzazione. Posizione silenziosa, ma strategica, a pochissimi minuti dalla riviera e comoda ad ogni servizio. Ideale per chi è alla ricerca di una casa immersa nella tranquillità, lontana dal traffico e soprattutto per chi cerca un po' di indipendenza! PORZIONE DI CASA IN OTTIMO STATO E LIBERA DA SUBITO!!! DA VEDERE PRIMA CHE SIA TROPPO TARDI!!!
Caratteristiche principali
Codice
V000619
Città
Mira (Oriago)
Categoria
Porzione di Casa
Prezzo
198.000 €
Locali
4
Camere
2
Bagni
1
Mq
115
Mq Giardino
50
Balconi
1
Classe energetica
D
199,99
Stato Immobile
Buono
Grado
Medio
Posizione
Centro Storico
Panorama
Vista Aperta
Orientamento
Nord Est Sud
Lati Liberi
3
Giardino
Privato
Arredi
Possibilità
Tipo Soggiorno
Soggiorno
Tipo Cucina
Abitabile
Riscaldamento
Autonomo
Tipo Riscaldam.
Caldaia a Condensazione
Tipo Impianto
Radiatori
Fonte Energetica
Gas
Acqua Calda
Autonoma
Raffrescamento
Split
Infissi
PVC Doppio Vetro
Serramenti
Nuovo
Persiana
Oscurante Legno
Pavim. Giorno
Gres Porcellanato
Pavim. Notte
Marmo
Pavim. Cucina
Gres Porcellanato
Pavim. Bagno
Personalizzato
Accesso Disabili
Nessuna Barriera
Accesso interno disabili
Pieno accesso
Appartamenti
Uno
Isolamento
Presente
Isolamento termico
Cappotto esterno
Isolamento acustico
Isolamento completo
Spessore cappotto (cm)
12
Destinato a residenti
Si
Impianto d’irrigazione
No
VMC
No

Accessori: Aria Condizionata, Doppi Vetri, Fibra Ottica, Lavanderia, Passaggio Pedonale, Porta Blindata, Rete Dati, Ripostiglio, Veranda, Zanzariere

Mappa
Via Piemonte , Mira (VE)
L'AGENTE di Spinea
Via G. Matteotti, 17/B -
30038 Spinea VE
Condividi su
Cookie preference