Italiano
220.000 €

MIRANO - CENTRO

Casa singola in vendita • Mirano - Via Belluno
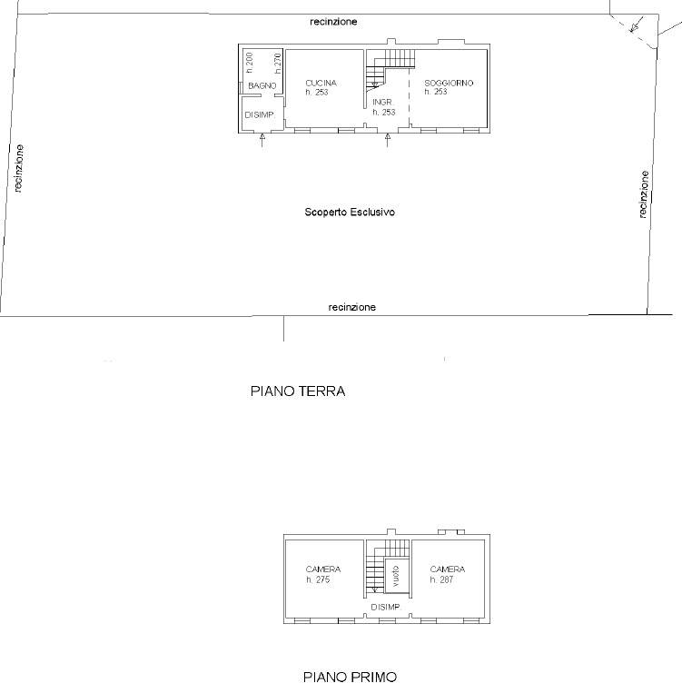
Mirano, a pochi minuti dall'ospedale, in una via residenziale, fuori dal traffico, disponiamo di CASA SINGOLA INDIPENDENTE CON GRANDE GIARDINO!!! La soluzione è composta al piano terra con: ingresso, soggiorno, cucina abitabile, antibagno usato come locale caldaia e bagno. Al piano primo è presente: ampio disimpegno, camera matrimoniale e un'altra camera grande. Esternamente l'immobile é circondato da un giardino privato di circa 600mq con possibilità di parcheggiare più auto all'interno! Come finiture troviamo: pavimentazione in cotto al piano terra, parquet nelle camere e gres porcellanato in bagno, finestre in legno vetrocamera, scuri in legno rifatti, split d'aria condizionata con pompa di calore, impianto elettrico e idraulico dell'epoca e riscaldamento autonomo CON CALDAIA NUOVA!! Esternamente l'immobile si presenta bene, con la regolare manutenzione sempre svolta e senza alcun lavoro straordinario in previsione. Posizione silenziosa, ma molto strategica, a pochissimi minuti dal centro e comoda ad ogni servizio. Ideale per chi è alla ricerca di comodi e ampi spazi per tutta la famiglia e soprattutto per chi ama stare in mezzo al verde e alla natura! CASA SINGOLA DA PERSONALIZZARE IN UNA ZONA RICERCATISSIMA!!! DA CORRERE PER VEDERLA ASSOLUTAMENTE!!!
Caratteristiche principali
Codice
V000632
Città
Mirano
Categoria
Casa singola
Prezzo
220.000 €
Locali
4
Camere
2
Bagni
1
Mq
101
Mq Giardino
600
Classe energetica
G
475,38
Stato Immobile
Da Ristrutturare
Grado
Medio
Posizione
Centro Storico
Panorama
Vista Aperta
Orientamento
Nord Ovest Sud Est
Lati Liberi
4
Giardino
Privato
Arredi
Non Arredato
Tipo Soggiorno
Soggiorno
Tipo Cucina
Abitabile
Riscaldamento
Autonomo
Tipo Riscaldam.
Caldaia
Tipo Impianto
Radiatori
Fonte Energetica
Gas
Acqua Calda
Autonoma
Raffrescamento
Split
Infissi
Legno Doppio Vetro
Serramenti
Buono
Persiana
Oscurante Legno
Pavim. Giorno
Cotto
Pavim. Notte
Parquet
Pavim. Cucina
Cotto
Pavim. Bagno
Gres Porcellanato
Accesso Disabili
Nessuna Barriera
Accesso interno disabili
Pieno accesso
Isolamento
Non presente
Isolamento termico
Nessuno
Isolamento acustico
Nessuno
Destinato a residenti
Si
Impianto d’irrigazione
No
VMC
No

Accessori: Aria Condizionata, Camino, Doppi Vetri, Lavanderia, Passaggio Automobilistico, Passaggio Pedonale, Ripostiglio

Mappa
Via Belluno , Mirano (VE)
L'AGENTE di Spinea
Via G. Matteotti, 17/B -
30038 Spinea VE
Condividi su
Cookie preference