Italiano
200.000 €

SPINEA - CENTRO

Villa Bifamiliare in vendita • Spinea (Orgnano) - Via Giuseppe Giusti
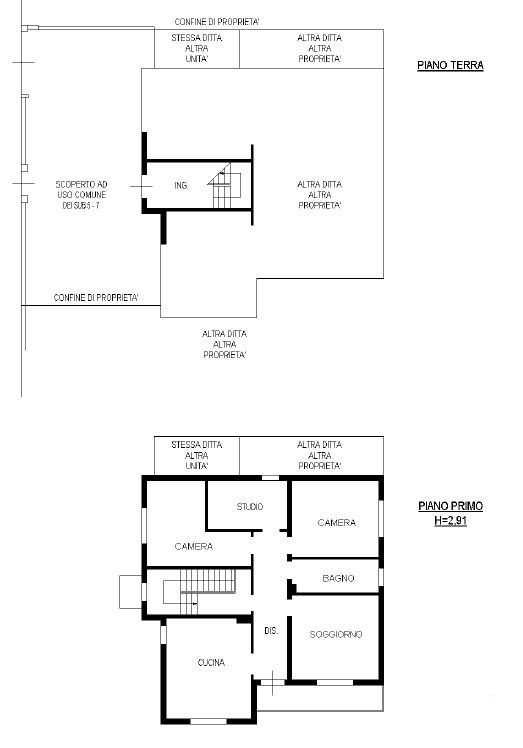
Spinea, in una laterale di via Roma, in una zona residenziale e tranquilla proponiamo una PORZIONE ORIZZONTALE AL PRIMO PIANO, RISTRUTTURATA E CON INGRESSO INDIPENDENTE!!! La soluzione è composta da: ingresso al piano terra, scale interne per accedere al primo piano dove troviamo: ampio disimpegno, poggiolo, soggiorno, cucina abitabile, camera matrimoniale, altra camera matrimoniale, bagno, uno studio da poter utilizzare come cameretta e sottotetto calpestabile usato come soffitta! Al piano terra è presente uno scoperto di proprietà privata con possibilità di parcheggiare più auto e un magazzino privato!! Internamente l'appartamento si presenta in buonissime condizioni perché è stato oggetto di ristrutturazione, come finiture presenta: pavimentazione in laminato nella zona giorno, parquet nella zona notte e gres in bagno, finestre in pvc effetto legno vetrocamera anta ribalta, tapparelle in pvc, zanzariere, tende da sole, porta d'ingresso blindata, bagno ristrutturato dal massetto nel 2011, impianto elettrico rifatto, quattro split d'aria condizionata con pompa di calore, isolamento di 12cm con lana di roccia dal sottotetto e riscaldamento con caldaia e PANNELLI SOLARI!!! Esternamente il fabbricato si presenta molto bene, con la manutenzione ordinaria sempre svolta e senza alcun lavoro in previsione. Immobile ideale per coppie o famiglie alla ricerca di qualsiasi comfort e per chi vuole una casa senza lavori!! OTTIMO RAPPORTO PREZZO - METRATURA!!! PORZIONE INDIPENDENTE DA VEDERE ASSOLUTAMENTE!!!
Caratteristiche principali
Codice
V000633
Città
Spinea (Orgnano)
Categoria
Villa Bifamiliare
Prezzo
200.000 €
Locali
5
Camere
2
Bagni
1
Mq
114
Mq Giardino
60
Balconi
1
Piano
1
Classe energetica
G
227
Stato Immobile
Ristrutturato
Grado
Medio
Posizione
Centro Storico
Panorama
Vista Aperta
Orientamento
Nord Ovest Sud Est
Lati Liberi
4
Giardino
Privato
Arredi
Possibilità
Tipo Soggiorno
Soggiorno
Tipo Cucina
Abitabile
Riscaldamento
Autonomo
Tipo Riscaldam.
Caldaia
Tipo Impianto
Radiatori
Fonte Energetica
Gas
Acqua Calda
Autonoma
Raffrescamento
Split
Infissi
PVC Doppio Vetro
Serramenti
Ottimo
Persiana
Tapparella PVC
Pavim. Giorno
Laminato
Pavim. Notte
Parquet
Pavim. Cucina
Laminato
Pavim. Bagno
Gres Porcellanato
Accesso Disabili
Nessuna Barriera
Accesso interno disabili
Non accessibile
Appartamenti
Uno
Isolamento
Presente
Isolamento termico
Isolamento tetto/sottotetto
Isolamento acustico
Isolamento completo
Destinato a residenti
Si
Impianto d’irrigazione
No
VMC
No

Accessori: Aria Condizionata, Doppi Vetri, Fibra Ottica, Impianto Fotovoltaico, Pannelli Solari, Passaggio Automobilistico, Passaggio Pedonale, Rete Dati, Zanzariere

Mappa
Via Giuseppe Giusti , Spinea (VE)
Video
L'AGENTE di Spinea
Via G. Matteotti, 17/B -
30038 Spinea VE
Condividi su
Cookie preference